CASA SANTIAGO - ANTIGUA GUATEMALA 2018 - 2021 620 m2

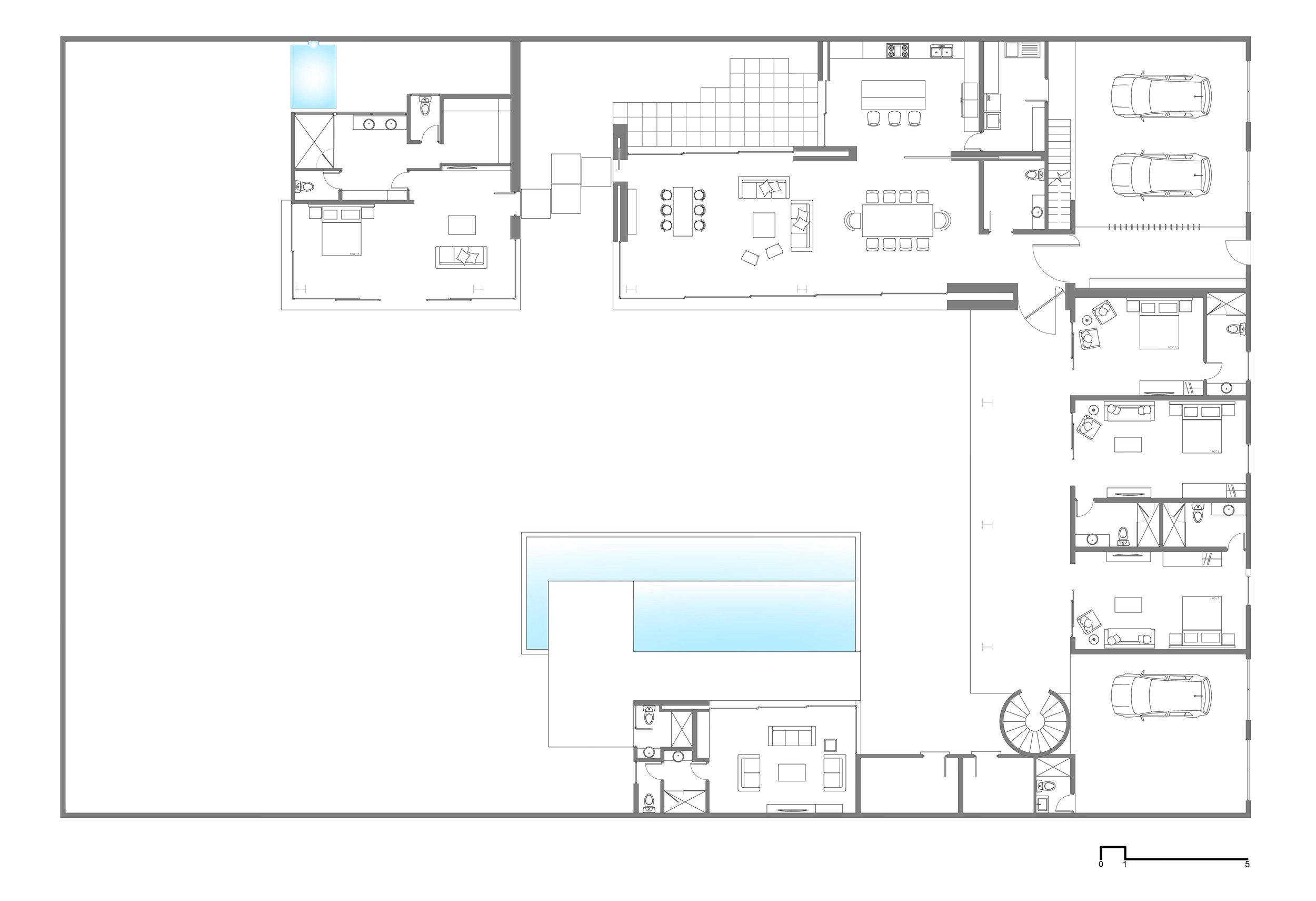
Casa Santiago se ubica en la ciudad colonial de Antigua Guatemala, en un terreno rodeado de arboles donde existía una finca de café.

Los clientes, habiendo conocido unos proyectos recientes nuestros en Antigua, nos pidieron una casa en esas lineas: moderno-colonial. Esto lo logramos usando materiales típicos como: ladrillo, piedra, teja de barro y madera de ciprés, pero resolviendo la distribución de espacios de una manera mas moderna, muy abierta a los jardines, con grandes ventanales, puertas corredizas y vigas de metal expuestas.

Previous
Previous

Casa Z

Next
Next

Casa de Flores