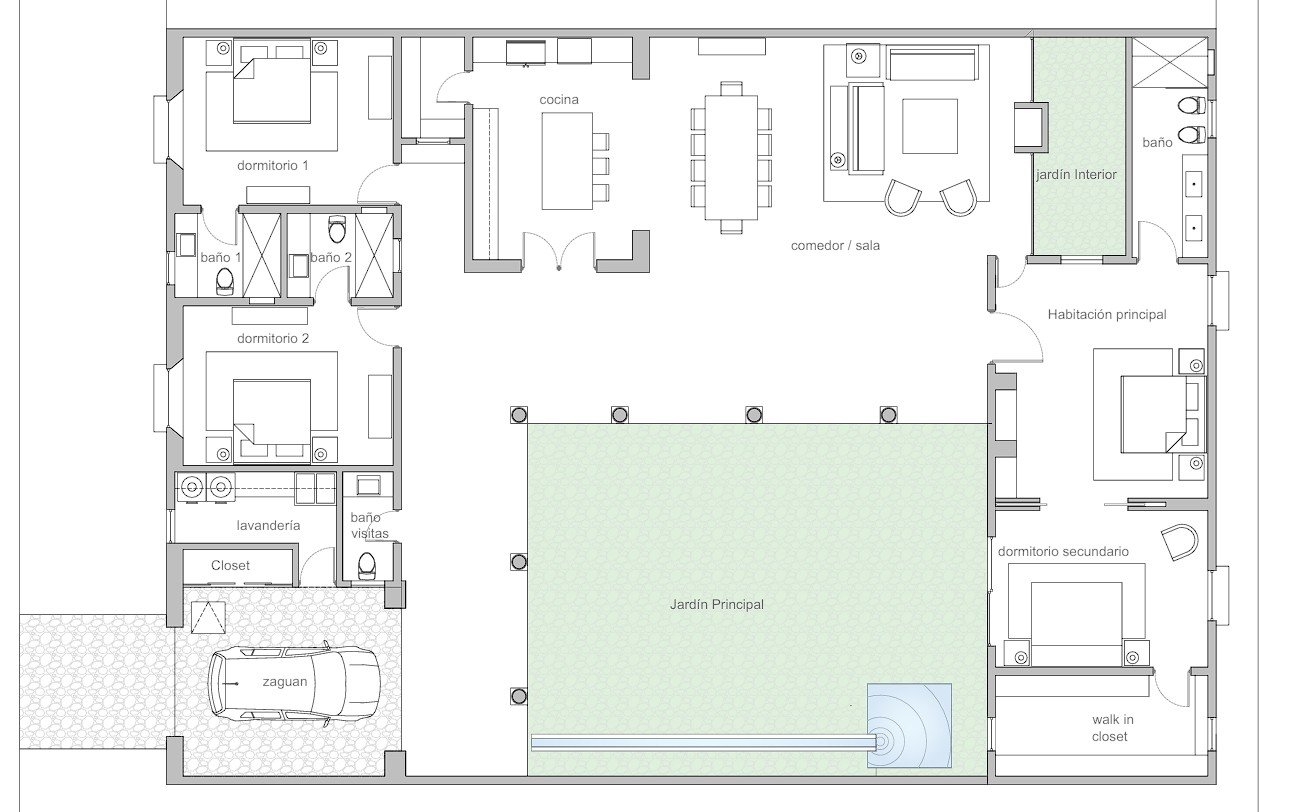
CASA JACARANDAS - ANTIGUA GUATEMALA 2021 360 m2

Para esta casa en Jacarandas de Antigua, la solución arquitectónica requiere de una tipología colonial de ambientes alrededor de un patio central. Para darle un aspecto mas moderno, decidimos utilizar una gama de materiales mas simple: madera sin tinte, porcelanatos de gran formato, gabinetes de cocina blancos, vigas de acero, y pintura blanca en los muros. Abrimos la sala y comedor a la terraza española con grandes hojas corredizas de vidrio templado.

Previous
Previous

Casa Y Antigua

Next
Next

Casa Franciscanos