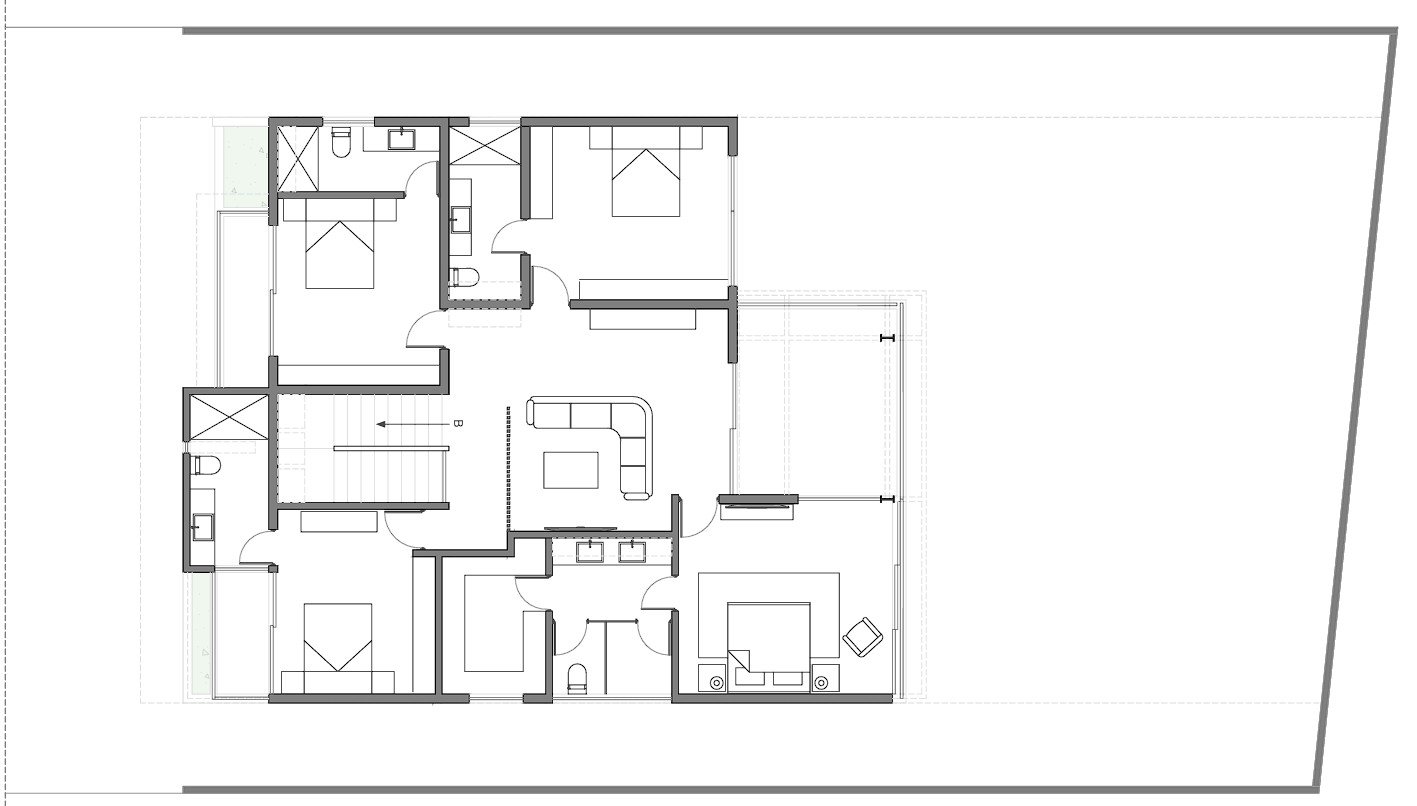
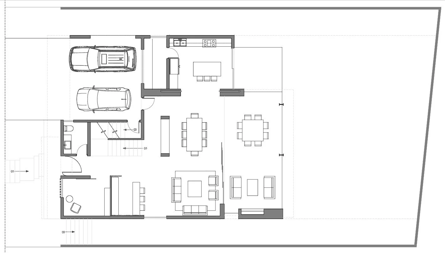
CASA MIRLO - SAUCES DE EL PULTE ECUESTRE 400 m2

.Este es uno de dos diseños de casas modelo para un condominio exclusivo en el club El Pulte Ecuestre, Ciudad de Guatemala. Cada casa modelo esta diseñada para la familia moderna, que busca ambientes amplios, terrazas para socializar y acabados premium.

Previous
Previous

Casa Pardela El Pulte

Next
Next

Casa Arboleda del Pulte