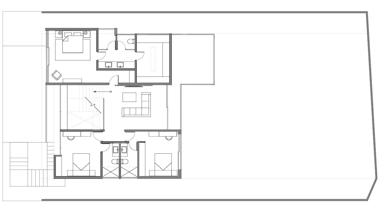
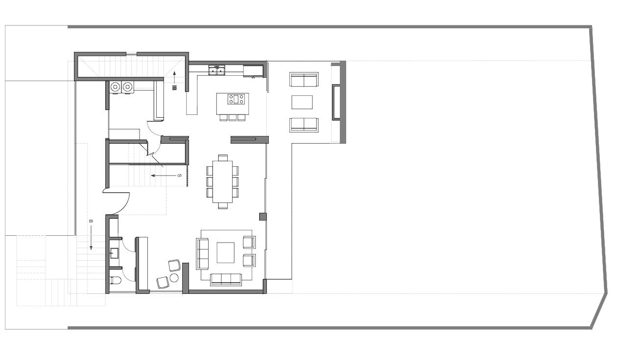
CASA PARDELA - EL PULTE ECUESTRE 400 m2

Este es uno de dos diseños de casas modelo para un condominio exclusivo en Ciudad de Guatemala. Cada casa modelo esta diseñada para que cada cliente la pueda personalizar a su gusto y necesidades, manteniendo la armonía del proyecto por medio de materiales y estilo arquitectónico.

Previous
Previous

Casa G El Pulte

Next
Next

Casa Mirlo El Pulte